















‘GBS De Plataan’ is een sterk groeiende basisschool in het centrum van de gemeente Merchtem met een verouderde infrastructuur die doorheen de afgelopen decennia werd gebouwd, verbouwd en aangepast. De gemeente Merchtem wenst een volledige 2-stroom van 480 leerlingen te voorzien op de site. Hiervoor heeft men besloten om over te gaan tot een vervangingsbouw. Hierbij staat duurzaamheid inclusief gebouweigenschappen zoals ruimte efficiëntie, energieverbruik en aanpasbaarheid centraal.
De oudste gebouwen dateren van 1937. Toen huisde er een jongensschool op de site en was er nog geen sprake van GBS ‘De Plataan’. Vanaf de jaren ’90 van vorige eeuw werd het gebouw in meerdere fases verbouwd en uitgebreid. De huidige schoolgebouwen staan pal in het midden van de schoolsite. Door de inplanting ervan, is de schoolsite vandaag niet doorwaadbaar, is de open ruimte versnipperd en het visuele overzicht op de site geblokkeerd.
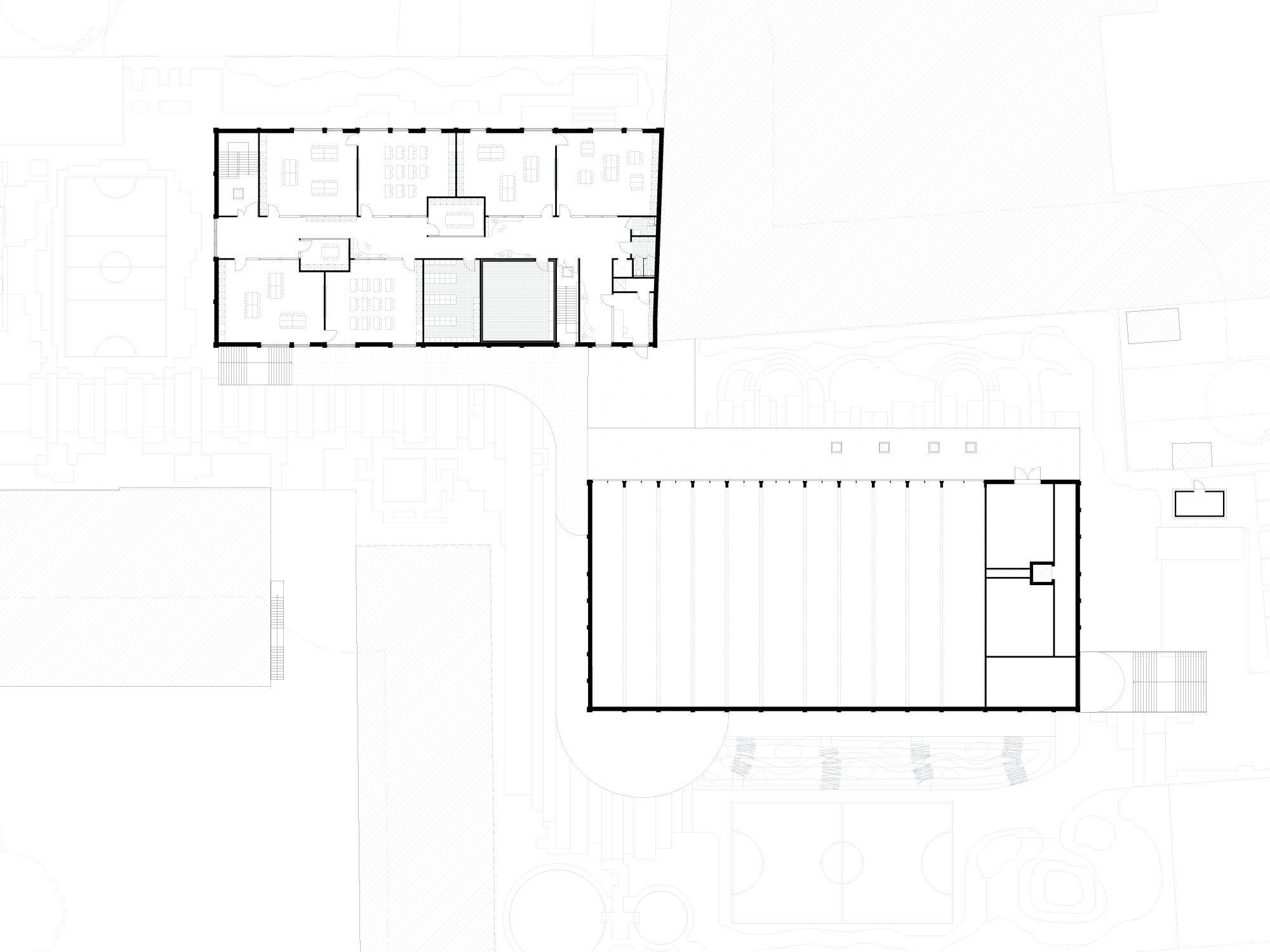
Na sloop van deze oude gebouwen ontstaat heel wat kwalitatieve vrije ruimte. Deze willen we zoveel mogelijk vrijwaren. Om de impact van het nieuwe programma op de site te beperken opteren we ervoor het programma in 3 compacte bouwlagen te stapelen. Het was onze uitdrukkelijke wens om af te stappen van de huidige inplanting die de site opdeelt in een voorzijde en een achterzijde. Het nieuwe gebouw, bestaande uit twee volumes, moet fungeren als verbindend element op de site.
De kleuterschool, polyvalente ruimtes en administratie worden op de begane grond geplaatst, terwijl de klassen van de lagere school worden gestapeld op de eerste en tweede verdieping. Daarnaast wordt de sportzaal strategisch bovenop de kleuterschool gepositioneerd. Deze keuze biedt diverse voordelen: enerzijds is de sportzaal gemakkelijk toegankelijk voor zowel de leerlingen van De Plataan als voor de leerlingen van GTSM, anderzijds bevindt de sportzaal zich op een handige locatie voor externe bezoekers, die deze kunnen bereiken via de ingang aan de Koning Albertstraat zonder hiervoor de schoolsite te moeten betreden.
De hooftoegang tot het schooldomein wordt op uitnodigende wijze gemarkeerd door een nieuwe luifelstructuur. Deze nieuwe structuur herbergt verschillende functies: in het verlengde van het inkomgedeelte bevindt zich de fietsparking voor de leerlingen, de fietsparking voor de leerkrachten en de vuilnisberging. Tenslotte fungeert deze luifel als overdekte speelplaats voor de lagere school. Via de luifel kom je tot de schoolpoort die toegang geeft tot het schooldomein. Een aangename en uitnodigende ‘groene boulevard’ leidt je recht naar het inkomplein met toegang tot het schoolgebouw.