















De site van Père Olive ligt in de gemeente Andenne, provincie Namen. Het omvangrijk gebouw vormt een industrieel lint aan de oevers van de kronkelende Maas. Met een nieuwbouw van maar liefst 22.000 m2 groeide Père Olive uit tot marktleider in vers verwerkte en verpakte olijven. Het industriële gebouw omvat de kantoren, de labo’s en de productie van het bedrijf.
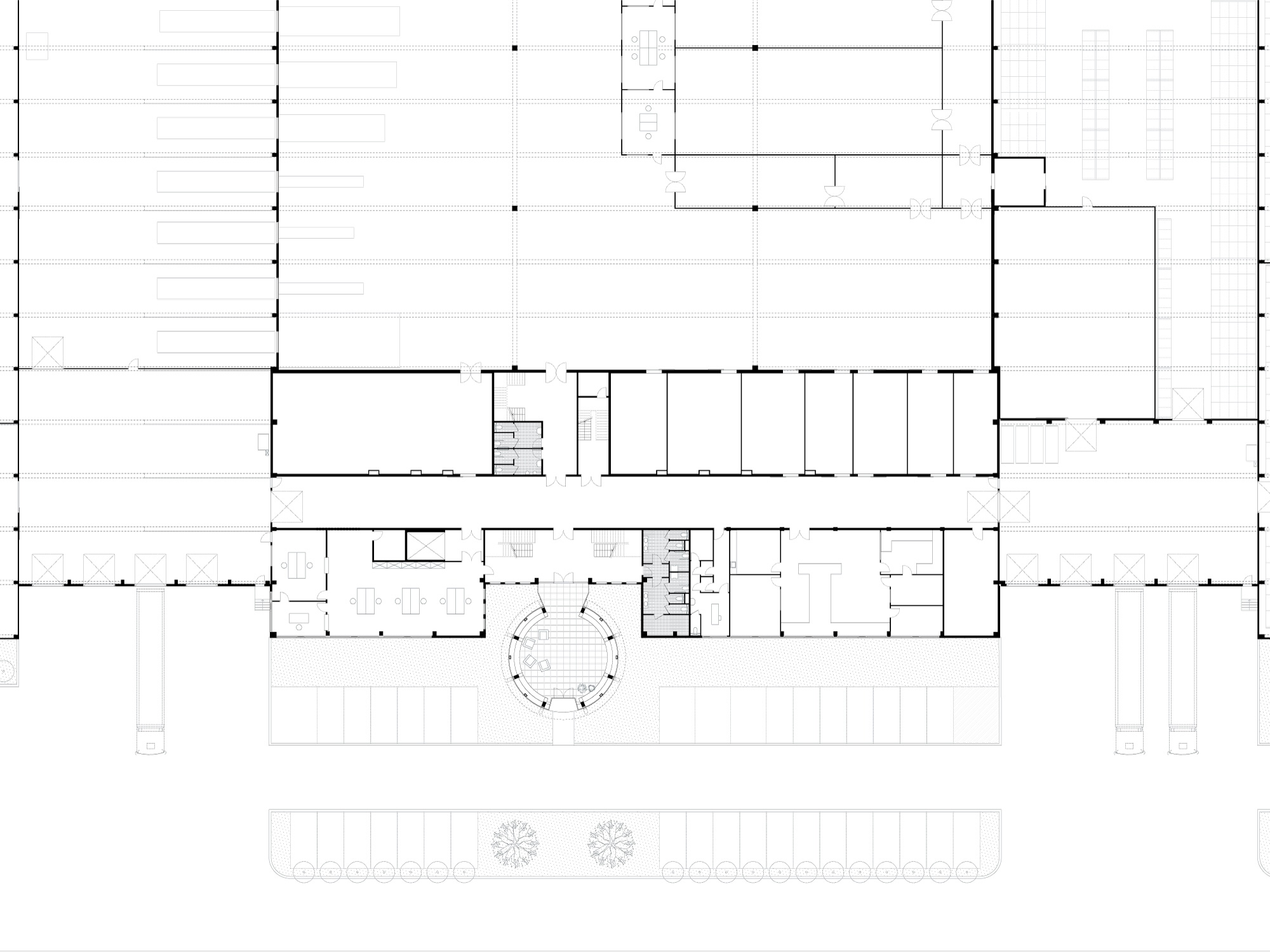
Het gebouw is ontworpen vanuit een geoptimaliseerde en logische flow van het bereidingsproces. Drie grote volumes omvatten de inkomende goederen, de productie en de uitgaande gekoelde, afgewerkte producten. Deze drie belangrijke delen liggen onderling geschakeld via een tussenliggend buffervolume.
Elke productielijn kan onafhankelijk van andere processen optimaal produceren en voldoende aanvoer voorzien voor de volgende stap. Dwars op het productieproces liggen aan- en afvoerlijnen voor verbruiksartikelen en afvoer van afval voor een optimale hygiëne.
Het gebouw is opgebouwd uit betonnen kolommen en gelamelleerde houten liggers met overspanningen van maar liefst 22,5 m om zo een open en flexibel plan te bekomen in de productie en de stockage.
Het inkomgebouw vormt een landmark langsheen het grijze en vlakke industriële lint aan de Maas. Het gebogen glazen inkomportaal is een knipoog naar de pure schoonheid van het basisproduct van Père Olive: de olijf.