







Bij het ontwerp van dit appartementencomplex met zes wooneenheden, werd vooral gekeken om optimaal gebruik te maken van natuurlijk licht. Doordat het gebouw op een hoek is gelegen, bood dit heel wat mogelijkheden. Grote ramen en terrassen zijn strategisch geplaatst, waardoor de bewoners kunnen genieten van een overvloed aan daglicht in elke kamer. De leefruimtes zijn aangenaam helder met grote ramen en schuifdeuren die directe toegang bieden tot het balkon.
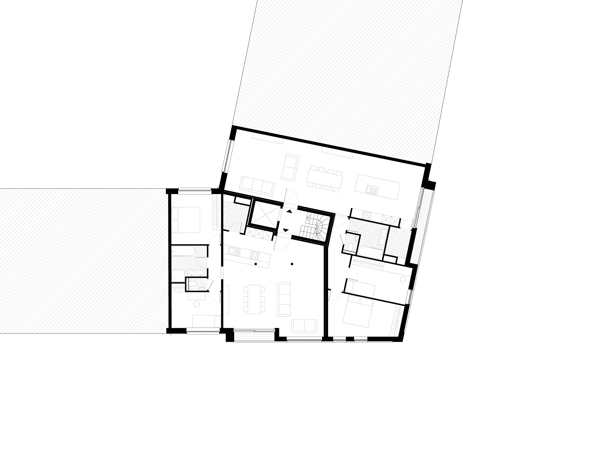
Onderaan het gebouw zijn gesloten parkeerplaatsen en private opbergruimtes ondergebracht. In de binnenhoek van het gebouw is nog een tuintje zodat ook achteraan het licht in de kamers kan dringen. Het gebouw heeft 5 wooneenheden met 2 slaapkamers. Een zesde wooneenheid heeft 3 slaapkamers.
De bouwheer had een duidelijke visie voor wat betreft het materiaalgebruik. Dit moest niet alleen mooi zijn, maar vooral ook duurzaam. Voor dit project kozen we hierdoor voor de combinatie tussen wit architectonisch gepolierde beton en zwarte aluminium lamellen, waardoor we de strakke en duurzame look hebben gecreëerd waar onze klant naar verlangde.
Het gebruik van wit architectonisch gepolierde beton geeft het gebouw een elegante uitstraling. Dit type beton is zorgvuldig vervaardigd en afgewerkt om een glad en glanzend oppervlak te creëren. Het witte kleurenschema brengt helderheid in het ontwerp en zorgt voor een frisse en tijdloze esthetiek. Daarnaast hebben we zwarte aluminium lamellen toegevoegd om divergentie en diepte aan het gebouw toe te voegen. Het contrast tussen de twee materialen versterkt de strakke lijnen van het gebouw, terwijl de duurzaamheid van het beton en aluminium ervoor zorgt dat het geheel jarenlang zijn hedendaagse uitstraling behoudt.
Binnen in de appartementen wordt het thema van licht en duurzaamheid voortgezet. De open keukens zijn ontworpen met lichte kleuren en moderne apparatuur, wat de ruimte nog verder verlicht en een gevoel van luchtigheid creëert. Voor de afwerking van de vloeren en badkamermuren, werden kwalitatieve materialen ingezet.